
EVORA IMMOBILIER
Agence
Contacter l'agence

Exclusivité
Immeuble 320 m²
Metz (57000)
275 000 €
Référence 417
A propos de ce bien
Plateau de 7 studios à 550 m de l'Université de Lorraine - Metz
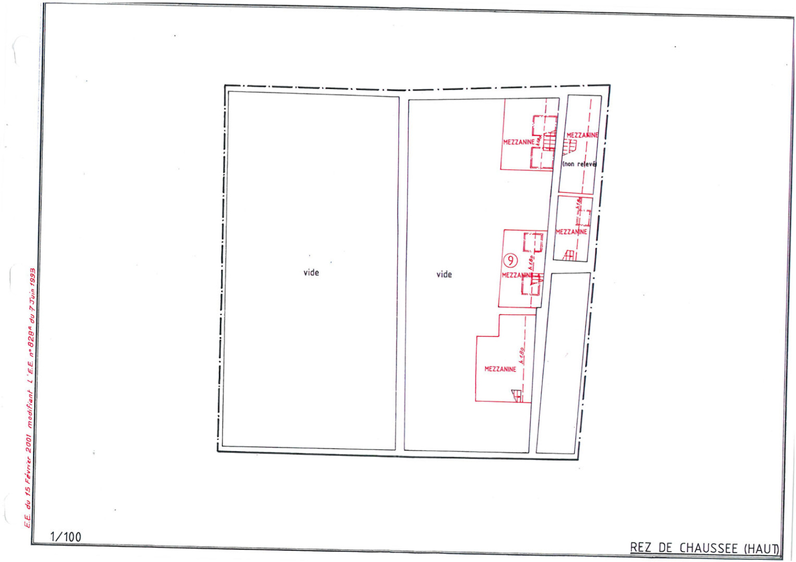
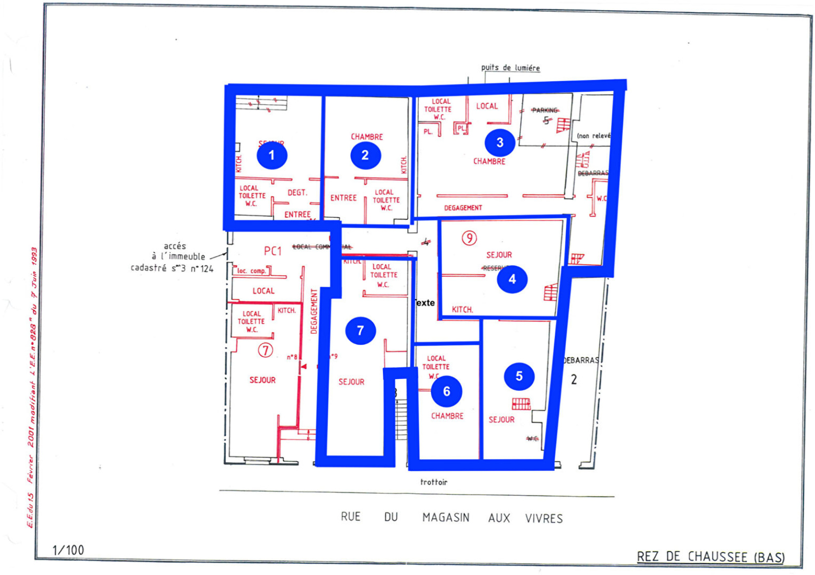
Situé au rez-de-chaussée d'un immeuble à quelques minutes à pied du campus universitaire, ce plateau de 320 m² (dont 281 m² habitables) se compose de 7 studios indépendants, certains avec mezzanine. Chaque studio est accessible par un dégagement central.
Actuellement, 4 studios sont loués et 3 sont libres. Des travaux de rénovation sont à prévoir sur l'ensemble, offrant un fort potentiel de revalorisation.
Idéal pour un investisseur souhaitant optimiser la rentabilité à proximité immédiate des facultés.
Opportunité rare dans un secteur à forte demande locative étudiante.
Situé au rez-de-chaussée d'un immeuble à quelques minutes à pied du campus universitaire, ce plateau de 320 m² (dont 281 m² habitables) se compose de 7 studios indépendants, certains avec mezzanine. Chaque studio est accessible par un dégagement central.
Actuellement, 4 studios sont loués et 3 sont libres. Des travaux de rénovation sont à prévoir sur l'ensemble, offrant un fort potentiel de revalorisation.
Idéal pour un investisseur souhaitant optimiser la rentabilité à proximité immédiate des facultés.
Opportunité rare dans un secteur à forte demande locative étudiante.
Caractéristiques de ce bien
- Surface 320 m²
- 7 chambre(s)
- cuisine
- Chauffage autre : autre (autre)
Diagnostics énergétiques
Consommation énergétique
A
B
C
D
E
F
G
Emission de gaz à effet de serre
A
B
C
D
E
F
G
DPE vierge
Diagnostics énergétiques
DPE vierge
Informations financières
Prix de vente honoraires TTC inclus
275 000 €