EVORA IMMOBILIER Agence
Télécharger la fiche

Maison 5 pièce(s) 3 chambre(s) 177 m²

Vitry-sur-Orne (57185)
438 500 € Référence 207

A propos de ce bien

Maison neuve - Prestations haut de gamme
Découvrez cette maison moderne à toit plat, actuellement en cours de construction, offrant de beaux volumes et un cadre de vie résolument contemporain.

D'une surface habitable de 177 m², cette maison a été conçue pour allier confort, luminosité et fonctionnalité, avec une architecture épurée et des espaces ouverts sur l'extérieur.

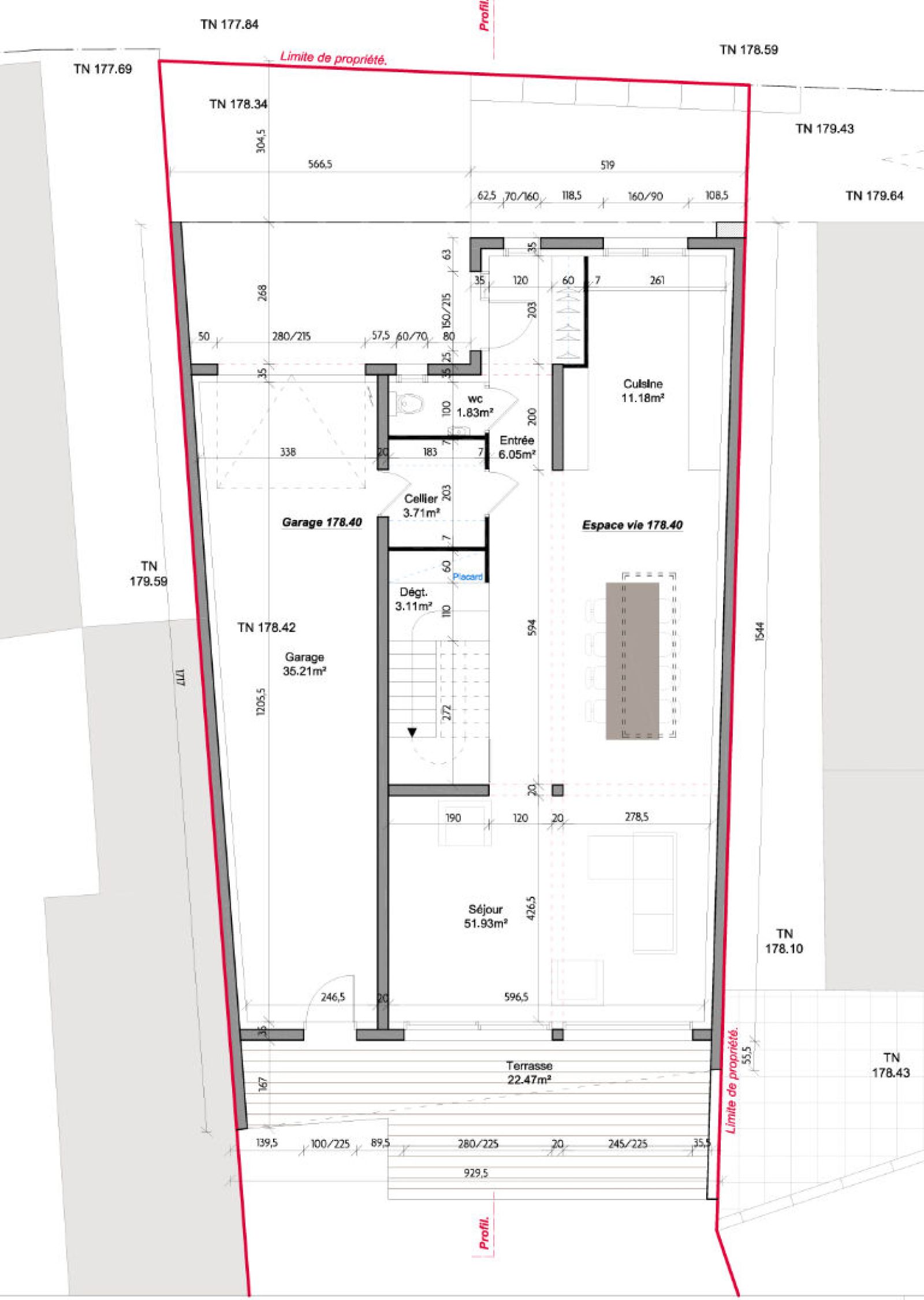
Au rez-de-chaussée :
- Une vaste pièce de vie de 63 m² comprenant cuisine et double séjour, lumineuse et conviviale
- Un cellier attenant au garage
- Un garage de 35 m²

Une magnifique terrasse donnant sur un jardin piscinable, idéal pour vos futurs aménagements extérieurs

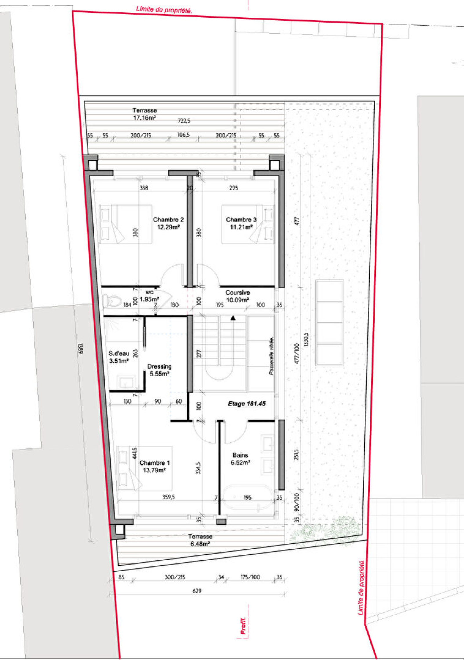
À l'étage :
-3 chambres, chacune avec accès à une terrasse
-1 salle de bain
-1 salle d'eau
-2 WC répartis sur les deux niveaux

Maison neuve en cours de construction
Le prix de vente est fixé à 438 500 €, hors finitions intérieures.
Les futurs acquéreurs auront la possibilité de personnaliser entièrement les finitions (revêtements, sanitaires, équipements, cuisine, etc.)
Un accompagnement complet est proposé afin de vous guider dans le choix des prestations supplémentaires et de créer un intérieur à votre image, selon votre budget et vos envies.

Les atouts :
- Architecture contemporaine à toit plat
- Volumes généreux et belles hauteurs
- Terrasses et jardin piscinable
- Proximité commerces, école, axes autoroutier, Luxembourg
- Construction neuve répondant aux normes actuelles

Pour plus d'informations ou pour découvrir le projet, contactez nous dès maintenant.
Une opportunité rare de créer votre maison sur mesure.

Caractéristiques de ce bien

  • Surface 177 m²
  • terrain 296 m²
  • 3 chambre(s)
  • 1 salle(s) de bain
  • 1 salle(s) d'eau
  • cuisine américaine
  • Chauffage individuel : au sol (autre)
  • terrasse

Diagnostics énergétiques

Consommation énergétique
A B C D E F G
Emission de gaz à effet de serre
A B C D E F G
DPE non concerné

Informations financières

Prix de vente honoraires TTC inclus 438 500 €

Calcul des mensualités

* Champs obligatoires