EVORA IMMOBILIER
Agence
Contacter l'agence
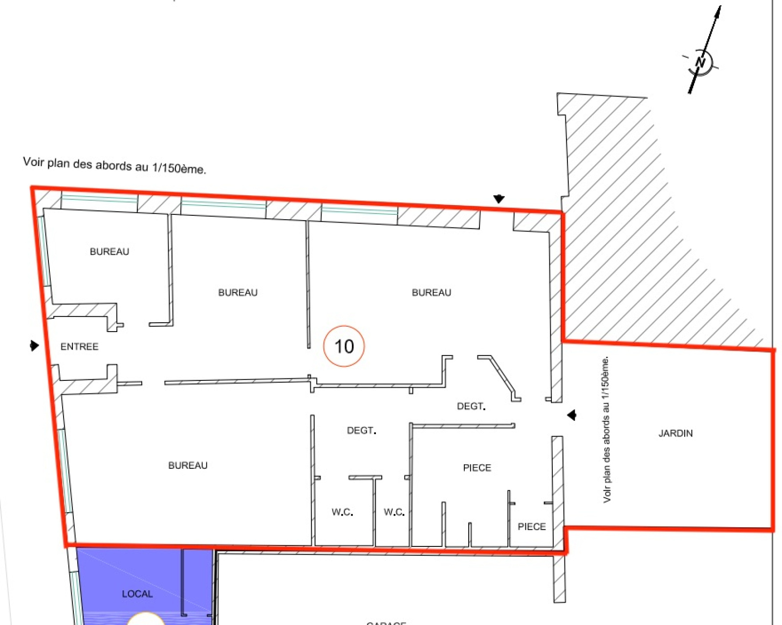
Appartement 4 pièce(s) 3 chambre(s) 133.5 m²
Féy (57420)
135 000 €
Référence EV0200
A propos de ce bien
SOUS OFFRE ! - Vous recherchez un bien unique, modulable et avec un fort potentiel ?
Découvrez ce superbe plateau de 133,50 m², situé dans une petite copropriété calme et bien tenue, au coeur de FEY.
Actuellement aménagé en bureaux, ce bien peut très facilement redevenir un appartement spacieux et fonctionnel. Laissez libre cours à vos envies :
Grande pièce de vie ouverte, cuisine avec accès direct sur le jardin, plusieurs chambres selon vos besoins, espaces de travail ou suite parentale. Belle hauteur sous plafond et volumes généreux
Le tout complété par un jardin privé de 606m², idéal pour profiter des beaux jours, créer un espace détente ou un coin repas extérieur.
Un bien rare, à voir absolument, parfait pour un projet d'habitation, un investissement ou une activité professionnelle.
Copropriété de 10 lots - dont 8 lots habitation. (Pas de procédure en cours).
Charges annuelles : 1200.00 euros.
Découvrez ce superbe plateau de 133,50 m², situé dans une petite copropriété calme et bien tenue, au coeur de FEY.
Actuellement aménagé en bureaux, ce bien peut très facilement redevenir un appartement spacieux et fonctionnel. Laissez libre cours à vos envies :
Grande pièce de vie ouverte, cuisine avec accès direct sur le jardin, plusieurs chambres selon vos besoins, espaces de travail ou suite parentale. Belle hauteur sous plafond et volumes généreux
Le tout complété par un jardin privé de 606m², idéal pour profiter des beaux jours, créer un espace détente ou un coin repas extérieur.
Un bien rare, à voir absolument, parfait pour un projet d'habitation, un investissement ou une activité professionnelle.
Copropriété de 10 lots - dont 8 lots habitation. (Pas de procédure en cours).
Charges annuelles : 1200.00 euros.
Caractéristiques de ce bien
- Surface 133,50 m²
- terrain 66 m²
- 3 chambre(s)
- construit en 1993
- cuisine
- Chauffage autre : autre (autre)
- 3 étage(s)
Diagnostics énergétiques
Consommation énergétique
A
B
C
D
E
F
G
Emission de gaz à effet de serre
A
B
C
D
E
F
G
DPE en cours
Diagnostics énergétiques
DPE en cours
Informations financières
Prix de vente honoraires TTC inclus
135 000 €
Informations de copropriété
Copropriété
Oui
Nombre de lots
10
Quote part annuelle des charges
1 200 €